平面布局图
历经多次修改,和李总充分的探讨,平面图基本敲定。基本满足了全家人的需求。
负二层如下:

南北天井保持开放不封闭,并且健身区、影音区也保持了开放式设计,这样内部和天井形成南北通透的效果,通风效果尤其好,保证了地下室的通风,另外由于有影音设备等娱乐活设施,在地下室需要安装新风系统与中央除湿机。
对于影音室的设计,其实考虑了很久,也想要一个梦寐以求的独立影音室,其实我算是一个并不发烧的AV爱好者(HIFI暂时爱不起),目前手里有一套设备:DENONAVR-4311,JBLL890+L830+LC2+SVS的SB12-NSD,这是一套性价比很高的入门设备。我当然知道独立影音室的效果好很多,但是这样一来,就把地下室难得的南北通透格局破坏了,几经取舍,最后放弃独立影音室的设计,一来是独立影音室需要价格不菲的声学装修和效果调试,二来我这人向来以格局为重,我更喜欢通透的空间,尤其是在地下室。那么这样的另一个好处是,声学装修几乎可以省略了,AV界有一个几乎达成共识的认知便是在声学效果上,具有声学装修的封闭影音室好于开放影音室好于没有声学装修的封闭影音室。所以,我折中选择了目前这个方案,后期在影音区前后墙面与吊顶布置一些吸音材料,两侧安装平绒遮光帘,形成视觉上的独立影音室感觉,相信视听效果也不会太糟糕,毕竟客厅党过来的木耳朵,这样已经满足了。
楼梯左侧为手工工作室,楼梯右侧为一个酒窖,我跟老爸都喜欢红酒,所以就奢侈了一点点搞了个独立酒窖。另外考虑从车库进门需要一个换鞋和挂衣的区域,便在酒窖两边安排了类似玄关柜的功能。与酒窖对应的是一个酒吧台,这个设计灵感来自Houzz的一幅图片,看见的第一眼就喜欢上了,拜托李总一定要做出这样的感觉~这个设计的用意是中间有一台电视,在健身或空间之余,可以坐在这边喝点东西看看比赛。并且该区域吊顶布置冷暖双色调灯带,可自由切换风格。属于这一层的亮点区域。

负一层如下:

这一层属于夹层。从南北天井能看到外面但是略低于外面,从采光和通风上,基本和一层没有区别。这一层餐厅部分原为挑空需要现浇混凝土,左上角洗衣区有一半是露天需要安装天窗,并考虑整个洗衣房的保温,毕竟不希望冬天极寒天气水漫金山。厨房分成两个部分,最北侧为封闭式中厨,中间为西厨搭配一个1.8x1m的西餐岛台,平时早餐会用到。右侧靠南为餐厅,李总在靠墙的地方设计了一排休闲卡座与西厨橱柜衔接,这样保证了餐厅的方正且不会显得突兀。另外为了采光更好,将餐厅与榻榻米房间之间的墙壁打掉,采用透光但不透视的艺术玻璃墙。榻榻米房间外围设计成儿童活动区。卫生间设计为干湿分离,且考虑卫生间无通风窗,听取了李总的意见,不设置淋浴。
一层如下:

这一层为会客厅,原始格局里,在南进门的玄关与客厅之间有一堵墙。在与李总的几次讨论之后,听取了他的意见,打掉那堵墙,造就更为纯正的美式开阔风格。这样的考虑不是没有道理的,第一,该层的玄关基本用不到,我们小区是人车分流,有地下车库,家人或朋友90%概率会通过负二层的车库进家,上面可能只有邻居或者车停在小区外面的客人会从这个入口进入,所以玄关用处极为有限;第二,如果设置玄关,那么关上房门之后玄关处必然是一个暗角,这在风水上稍有不利,除非玄关长明灯;第三,既然选择美式风格,宽敞大气必然是主旋律,这样的格局让客厅看起来更为开阔一些。这样,沙发组可以居中摆设,并设置一个壁炉背景墙,进门处一排造型玄关柜,中间摆放女儿的钢琴。旁边书房也做开放式,两边李总设计成对称的书柜。
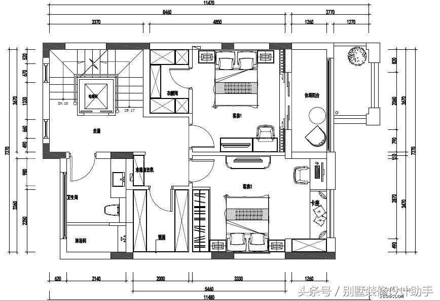
二层如下:

这一层的格局有较大改动,原本的北露台改为现在的卫生间,初步的想法是在外面封铝合金窗,可能的话在铝合金窗内侧浇筑混凝土顶,但这有一定的风险,怕物业不允许,如果不行的话只能在铝合金窗户内侧设置保温层,再吊石膏顶。另外从程老师处得到一个好消息,就是现在的木结构设备屋发展的相当成熟,如果物业允许,我会去考察一下该方案。该层的两个房间外面有个贯通的南阳台,准备封掉客房2的部分并且外推做一个儿童房卡座,但此处有一个疑问是邻居施工时阳台与房间相邻处有一道地梁并且有钢筋,原则上不允许拆除,程老师的意见是削平混凝土看看离地有多高,尽量通过房间的地暖和铺砖找平,不能的话就设置一个踏步,踏步上面的卡座格局作相应调整。总的来说,问题不大,但是需要提前做好思想准备。其余的设计,比较常规,听取李总的意见,在独立衣帽间外面设置一个末端直饮水吧台,这绝对是经验设计,非常实用且有比要。
三层如下:

顶层的主卧,需要设计成我喜欢的北欧风格。阳台不打算封掉。并且通过设计嵌入式衣柜和末端直饮水吧台,巧妙地把原始构造不方正的一个角落给合理利用了,使得房间方正且不浪费空间,这里尤其体现出了李总独到且使用的设计经验,衣帽间与卫生间的格局我采用了局部南北通透格局,这样会浪费一点衣帽间的储物空间,但是换来的是难得的通风效果。关于卫生间,有一个特别喜欢的效果图,基本就想照做了。

总的来说,这套方案图凝聚了李总和我很多的心血,几次易稿,几次调整。我是一个挑剔的人,在这里,尤其感谢李总的用心,感谢美女小张的出谋划策与不厌其烦帮我改图,感谢各方面的支持,让我对最终效果有了很大的希望与憧憬。
下面贴了几张自己喜欢的风格图。宽敞,明亮,简洁,是我的菜。

效果图
客厅

门厅

主卧

还有几张我从网络上找的想借鉴的实景图。




开关布置图
当设计师捧出厚厚一沓图纸的时候,开关布置图是这其中不可缺少的一种图,但是貌似很少有人关心,基本都是大概过一遍,然后在水电放样的时候跟设计师和工人交接一下意见,最后或多或少会留有一些遗憾无法更改,虽说不会引起什么大问题。大家的注意力多放在强弱电插座布置上,要求尽量多尽量全,但是请记住开关布置图的设计也会影响日后我们使用的便捷性,甚至是安全性(尤其是上下楼梯),设计师方面肯定是本着使用方便的宗旨进行设计,但是每一家生活习惯都不尽相同,所以为了减少遗憾,值得仔细规划。一个最合理的评价标准就是,一个陌生客人去你家做客,到底能不能快速找到并适应那些错综复杂的开关布置?如果能,那么说开关布置就是合理的。
今晚闲来无事,把设计师的开关布置图过了一遍,基本满足要求,但是我又增加了一些自己的生活习惯并修改了一些不足,合理性得到提升。手绘版本有点粗糙,实在是懒得开CAD搞了~红笔为我的修订,黑笔为设计师原设计方案,为了容易查看,我全部给手绘出来了。
看图之前先普及一个知识:X联X控开关,比如单联指一个按钮双联指两个按钮,单控就是说它只有一个触点(常开触点或常闭触点)。双控:就是说它有两个触点(常开触点和常闭触点)。单联单控开关一般用于点动控制,双联单控开关一般用于长动控制。单控开关特点:通与断;双控开关特点:上通下断或下通上断。单控开关只作灯的一地点控制通断作用;双控开关可作为二地分别可控制灯通断作用。双控两条电路保证当任意一个开关状态改变,可以使中间连接的电器和电源在开路/断路状态切换。通俗地说,X联X控中的X联表示一个开关盒子上面有几个开关按钮,一般要求同一类或一同区域的开关放进同一开关盒子内,便于识别;X控表示同一灯位有几处开关控制,一般家用以单控和双控居多,单控一般用于封闭空间,双控一般用于贯通空间,但是有一个例外就是卧室必须双控。
负二层开关布置:

负一层开关布置:

一层开关布置:

二层开关布置:

三层开关布置:

现场放样情况。




队长发来前线照片,敲墙进行中。


年前砸墙全部搞定,工人回家过节,年后开始浇筑。队长发来现场照片,收拾很干净,拆下的门窗都妥善存放了,希望继续保持






今天去看到探头已安装完毕,现场交接了下工作,封门回家过年喽。预祝大家春节快乐!

德淘的高仪高脚龙头到货,有点小贵。


年后已经开工,不到6平方现浇一天完成。全部按照之前的工艺进行。现场监理老师全程现场监督并保存影音资料,辛苦了。特别要注意开槽深度,钢筋、水泥标号,植筋工艺,布筋间距,试块留样等。





负责任的队长,每天准时进行现浇面保养。

上周末去工地巡查,发现浇筑面出现些许裂缝,通知队长前去排查,队长凿开裂缝发现只是水泥表面裂纹,没有深达钢筋,放下了心。究其原因,应该是使用了425高标号水泥造成,虽然强度更好,但是水泥收缩力也更大。其实这种小裂缝在浇筑中应该是比较常见的,但是只要不深入钢筋(裂缝深入钢筋的话钢筋很快氧化生锈,影响楼板强度),或者不是纵向或横向绵延很长的那种,问题不大,凿开裂缝用水泥素浆修补即可。想想乐平总的帖子里也出现过类似问题,凿开裂缝发现也只是表面张裂。





砌墙放样中,今天是砌墙交底,由于楼主工作太忙没时间去现场,李总会亲自到场与队长交底,所以我比较放心。


翻了半天,没有露脸照只有背影照


东美自己提出的整改项,备案之后,还要落实到行动哦!



土建现场直播,试块看见有人为破损痕迹,看来现场监理已检验过。



整理下近期进展:
土建已接近尾声,我与现场监理现场检查,尺寸基本符合要求,部分墙体有1°以内倾斜,符合相关标准。部分墙体的水泥有轻微小裂缝,现场监理认为是正常现象。问题项:有几处门洞高度不对需要整改,负二楼与二楼部分短墙未砌,局部区域需要修粉。现浇模板建议28天后拆除。




水电定位于上周已完成,李总和秦老板夫妻档齐上阵,把所有空调定位逐个过了一遍,解决了一些吊顶干涉问题。秦老板很给力,据说把自己家装修的御用空调师傅和地暖师傅搬过来了。李总要追求吊顶的美观,秦老板要保证设备的最大效能,俩人就个别问题展开激烈探讨。好在最后问题基本都解决了

。下午花了四个小时,和设计助理小张以及水电工小沙把开关插座一一过了一遍。下周开始水电施工。


队长发来水电开槽作业情况。





水电持续进行中,前期我亲自跟设计师和施工队把所有开关插座过目并定位的好处显现出来:只要工人按照图纸做,基本不会出现返工等扯皮的现象。这样对业主和施工方是双赢的。另外,水电定位的开关插座必须考虑完成面高度而不是毛地坪高度。一般的,铺设地暖要考虑预留十公分完成面高度,没有地暖大概在五公分左右。


监理老师随机去现场抽查施工质量,并记录相关问题,提交给我。





因为要使用类似的多联框,导致空调地暖新风等的开关一排放不开,水电师傅及时反映了问题,并重新定位征求我的意见。我想说的是,遇见一个知道沟通的工人师傅,是多么的幸运!



先来汇报一下进来的进展,由于两边邻居入住,周末不施工,感觉工期要延长,在这种情况下,更要保证质量。
由于地下室同时装有新风、空调和中央除湿机,管路布局确实是一件麻烦事,看看这些洞就知道了。某个周末用了小半天时间,和睿楷的老板娘还有空调程师傅把方案敲定。另有几处调整也请尽快落实。





空调内机已进场准备安装,临时增加了一套大金的ds-air远程控制系统,对于我这种经常出门很久想起空调没关的梦游一族来说,这项功能还是比较有意义,可以通过一个手机app远程控制全屋空调状态,虽然这个app现在做的还有点low。之前有过出去旅游十天回来发现空调没关的先例

,当月电费账单直接让我吃土。这个需要提前布弱点线,需要该功能需要提前跟暖通公司沟通。

近期最大的进展是电梯施工突破重重困难,终于把架子搭起来了。开发商送的鸡肋,但是聊胜于无,只求安全可靠就好!安装工人还是比较认真的,大事小事都要汇报一下。





东美工地巡检提示现场某些区域有些脏乱,希望之后能有所改善。




接下来送上东美客户的专享福利,你们懂得






铝合金
花了一段时间,搞定了铝合金门窗的事情。简单说一下我的选择过程和要点。
首先,要确定自己需要什么材质的窗户,讲究一点的,有所谓的铝包木、木包铝之类的,其实在国外,并没有木包铝和铝包木的叫法,他们的叫法是铝木复合门窗,只是这种门窗引进中国后,聪明的中国人对他进行了改进,就衍生出了铝包木和木包铝这种叫法。铝包木主体结构为纯木窗,通过特殊工艺在窗外侧镶嵌一层铝合金型材,从而形成铝包木窗,这样的构造加强了木窗的耐候性,同时,建筑外观又可视觉协调统一。装饰性与实用性完美统一是铝包木门窗的主要特点,铝包木的主体承重主要是实木型材。木包铝主体结构为断桥铝合金,通过特殊工艺在窗内侧镶嵌一层优质纯木材,从而形成木包铝门窗,木包铝门窗就等同于铝合金门窗,内部是美观高雅的实木,外部则是高强度的铝合金型材,木包铝门窗即具有了铝合金门窗一切优点又完美地保留了纯木窗的审美特点,木包铝的主体承重主要是铝合金型材。铝木门窗的优势,从结构上看,铝木复合门窗外铝内木,铝能抵御室外的风吹日晒、雨水侵袭,木又提高了室内装修的档次,体现出良好的视觉效果。达到了即防潮环保又美观温馨的效果,这是单纯铝合金门窗或者纯实木门窗所无法比拟的。此外,铝木复合门窗还有一个重要特点:断桥加中空结构使门窗的节能、环保性得到了充分体现,这种结构增强了隔音性和密封性,能起到保温、隔热的作用,减少了取暖和制冷的能量消耗。
价比比较高的选择则是断桥铝,断桥铝又叫隔热断桥铝型材,隔热铝合金型材,断桥铝合金,断冷热桥型材,断桥式铝塑复型材。它比普通的铝合金型材有着更优异的性能。具体地说,因为铝合金是金属,导热比较快,所以当室内外温度相差很多时,铝合金就可以成为传递热量的一座“桥”,这样的材料做成门窗,它的隔热性能就不佳了。而断桥铝是将铝合金从中间断开的,它采用硬塑将断开的铝合金连为一体,我们知道塑料导热明显要比金属慢,这样热量就不容易通过整个材料了,材料的隔热性能也就变好了,这就是“断桥铝(合金)”的名字由来。型号分为5060657080等,数字代表型材厚度,60即厚度60mm,依此类推,厚度越厚气密性和热阻隔性越好,价格也越贵。要使用多厚的型材,具体要看是用在什么位置,卧室一般要选择60以上,如果离马路近可以选择70以上,可增加对噪音的阻隔。品牌选择一些常见的即可,不用刻意追求什么国外品牌,其实大部分所谓的国外品牌都是假洋鬼子,但是国内品牌又鱼龙混杂,五花八门,一定要注意看实物,看型材厚度(国标1.4mm),看密封结构,好的断桥铝从外观看一般气密结构呈立体式,横断面为阶梯状,差的一般就是一个平面框,根本没起到断桥铝的优势作用。
再差一点的材质,就是普通铝合金,用在一些不那么重要的区域,比如阳光房,设备房等,铝合金比较常见了,也就不过多介绍。铝合金的气密性,热隔绝性都比断桥铝差一些,但是价格也更低廉。
另外,好的材料不代表好的效果,因为安装不规范,不到位,或者五金件太次,一样会影响窗户的寿命,和居住舒适度。五金件国外品牌推荐德国诺托(roto),当然假的比真的还多,所以在不确定的情况下,选择国内品牌稳妥一些。
不管选择什么材料,能用推开窗不用移窗,亲身经历告诉大家,移窗的密封条年久失效后,大风天会呜呜响,下雨天滑道导水槽容易堵塞积水,里面的灰抠都抠不出来。现在除了特殊的要求不能做推开窗只能做移窗,其余地方基本已经很少用移窗了。如果希望在雨天可以开窗透气并且阻止雨水进屋,还可以选择内开内倒的窗户。
我在对供应商的选择上,首先考察了小区做的最多的一家,结果发现越往后做的邻居反映的质量问题暴露越多,直接pass。之后考察了几个不同渠道介绍的厂子,有的价格高,有的牌子没听过,最后在篱笆的几家进驻商家中查找了一番,找到创饰门窗,维诺斯盾断桥铝推窗价格适中,巧合的是经过了解后发现我之前住的公寓也是这家做的,几年用下来感觉质量可以,然后去了厂子考察了一趟,确定了不是小作坊后,就定下来了。
接待我的文林大姐态度很好,人也很负责任,不厌其烦的帮我改了很多次设计稿,并且答应给了一定的优惠;负责安装的帅师傅经验丰富,现场测量时就指出很多细节问题,专业程度令人满意。

安装初期出现了一点小插曲,发现儿童房这个窗户大小比例不太协调,,中间对开部分太小,两边固定扇太宽,在与文林沟通后,也痛快承诺返厂修改,服务态度一流,目前窗户还没完全装好,等待返厂维修后的结果。

水电验收篇
水电验收相对比较顺利,没出什么大的问题。这得益于几个方面:一是要与水电师傅充分沟通,确保其明白所有设计的用意;二是因为不管多忙我都会抽出一定时间巡检工地,有想改动的地方或者施工存在误差的地方我会第一时间与工人师傅沟通解决(重说三:不管是否请了监理,不管施工公司多么nb,自己盯工地是非常有必要的!假如你对自己的家都不操心,这种情绪会蔓延的,全交给监理公司也不妥,因为监理公司重点在于施工规范性,个性需求还需要自己亲力亲为);三是在水电验收的前一周,我,现场监理朱老师,东美项目经理徐经理和队长以及水电师傅等进行了水电预检,针对一些整改项提前指出,所以在正式水电验收时,问题基本已经改得差不多了。其中这里面,我觉得每周一次的巡检很有必要,不要把问题都堆在水电验收的时候做,那时候返工多工人师傅不愿意做,而且也比较麻烦。
水电验收,程老爷子坐镇,特别感谢程老师身体有恙还在医院休养的情况下仍遵守契约坚持到现场参加验收工作。

摇表测试强电

弱电线必须每根的每股都要检查(图中是我们的水电师傅,一个帅小伙,干活麻利,技术好,同时还是我家的木工,全能选手,赞)

程老师总结现场问题


现场问题整理





空调新风等管路布置错综复杂,我的梁啊,已千疮百孔。





空调打压测试

水电验收签字,关键字:无增项。(朱队是一个难得负责任的队长,好沟通,出现问题沟通都是客客气气的,不捣糨糊,不坑“队友”,推荐!)

地暖主管道已铺设完毕并保压,丹佛斯看着就是舒坦。




卫生间防水,以及闭水试验。卫生间防水涂料刷两层,地面防水上翻30cm,淋浴迎水面防水1.8m,地面有水管管路需找平再做防水,防水涂料不可直接接触水管。




监理老师巡查工地并指出问题。



程老师建议使用塑钢土/泥代替水不漏等防水材料处理穿墙打洞的缝隙。耐久性会得到大大提升。注意塑钢土分为徒手施工和胶枪施工两种,天花板上的处理最好用徒手型,胶枪型的太稀,不太好操作。


瓷砖铺贴设计交给设计助理小张美女和冠珠设计师,两人交流很快搞定,我没怎么操心。装修进展将半,小张同学尽心尽力,有问必答,即使不是分内的事,能帮上忙的也绝不含糊。让我少操了不少的心。不管她本人是否能看到这里,真的是发自内心的感谢。
简洁素雅是我的菜,当然高性价比是我选择瓷砖的第一因素,把合理的钱花在自己认为该花的地方,这就是鄙人理解的理性装修。客厅的砖用的冠珠全抛釉,放弃了之前选的微晶石,颜色比较温馨,接近于效果图的样式。地下室用的柔光砖,主要考虑地下室筒灯射灯太多,并且还有影音区,高光砖光线反射让人不太舒服。在网上找了两张瓷砖图,这两个砖基本就是主力军了,关键是价格便宜量又足!




最近的进展,地暖盘管已铺好,下周浇地坪。




白晶板+纯铝膜。杠杠滴
队长把保护措施落实到位,按照梓相东美工程部和业主本人的要求,全面升级保护措施,这个要赞一下。
1.门窗打上木架外围保护膜包起来,一来灰尘不会聚集在缝里,二来保护窗户边框和把手
2.楼梯外侧拉上安全网保护工人施工时的安全
3.对再使用设备进行有效保护